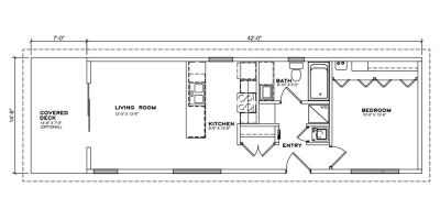
MODULAR HOME FLOOR PLANS

We’re proud of our unique ability to custom design your home to suit your taste and lifestyle. Our in-house designers discuss modular home floor plans and possibilities for custom touches. We have all the expertise you need to build your perfect home right here at Chaparral

Life Inspired. Built Modular.