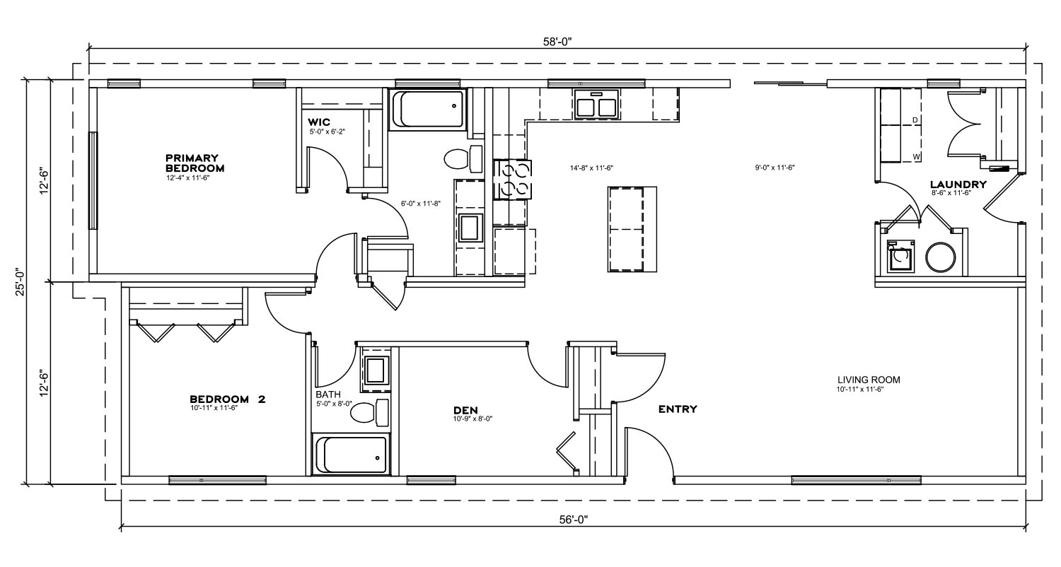
Great Mullein Floor Plan

Area: 1,425 sq/ft - Bedroom: 2 - Den: 1 - Bathroom: 2

Downloadable PDF Floor Plan

Like this floor plan?

Note: Chaparral reserves the right to change specifications, designs, and prices without notice. Floor plans are for illustrative purposes and may not be to scale. This drawing is the copyright of Chaparral Industries (86) Inc. and shall not be used or duplicated without written permission.

Life Inspired. Built Modular.